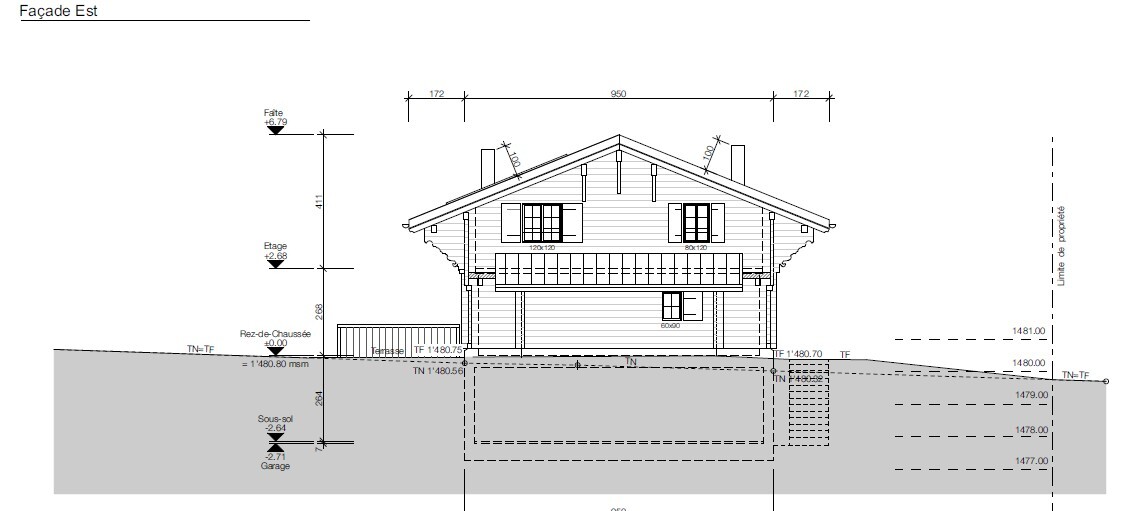
1260 Nyon - Maison individuelle rénovée proche du centre-ville
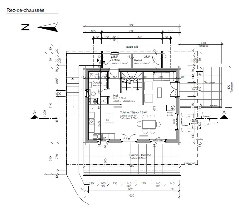
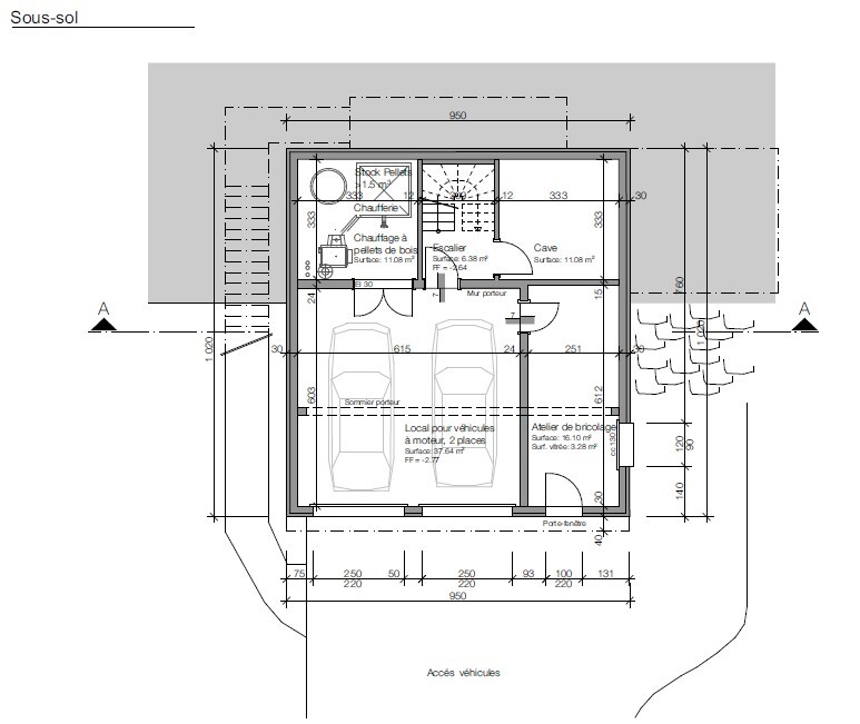
« Mon observation : maison individuelle de 5.5 pièces avec jardin et places de parking, rénovée avec soin et située non loin du centre-ville de Nyon. Un bien rare sur le marché local, alliant tranquillité, espace et proximité immédiate des commodités. » JOURNÉE PORTES OUVERTES SUR RENDEZ-VOUS CE MERCREDI !Description de la maison individuelleSituée dans un quartier résidentiel paisible, cette maison contiguê sur un côté offre un cadre de vie agréable à deux pas du centre-ville de Nyon. Répartie sur deux niveaux, elle propose une surface habitable fonctionnelle et lumineuse, orientée sud-est. Le rez-de-chaussée comprend une spacieuse pièce à vivre avec cheminée, une cuisine entièrement équipée, une chambre, une salle de douche et des WC indépendants. Le sous-sol, parfaitement aménagé, offre : deux chambres dont une pouvant être utilisée comme bureau, un carnozet, une buanderie, un local technique et des WC. À l'extérieur, la maison dispose d'une...