Loft
3 Rooms
50 m²
6834 Morbio Inferiore
To agree
Dans la plus belle et prestigieuse propriété privée du sud de la Suisse italienne, ce magnifique LOFT indépendant est situé, entièrement meublé et avec garage pour deux voitures et motos et espace barbecue extérieur. La magnifique propriété est située sur les collines du Mendrisiotto, stratégiquement située à 7 minutes du lac de Côme, à 30 minutes de Milan et à 15 minutes de Lugano, entourée de vignobles et d’oliviers et avec une vue panoramique extraordinaire. Le LOFT est loué de manière flexible, avec des contrats trimestriels ou annuels. CHF 1'900 par mois ALL INCLUSIVE - l’électricité, l’eau, Le LOFT se compose comme suit : - Garage privé pour voitures et motos -Entrée - Cuisine complète avec tous les ustensiles, table à manger avec 4 chaises, bureau avec fauteuil de bureau - Salon avec canapé 4 places, Smart TV, lit 160x200 - Chambre principale avec lit king size, armoire encastrée
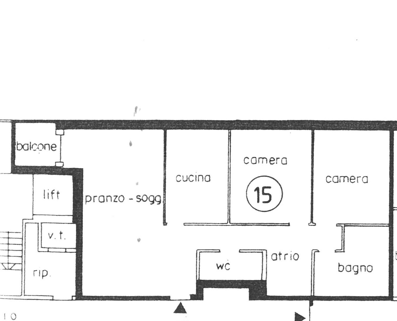
Apartment
4.5 Rooms
4.5 Rooms
CHF 1,250.-/month + ch.
Via Cereghetti 8, 6834 Morbio Inferiore
2nd floor
Immediate
Bel 4.5 loc. in comodissima posizione tranquilla con vista sulle vigne
Affittasi in condominio, spazioso 4.5 locali, in bella posizione tranquilla nel centro di Morbio Inferiore. Bella zona nel verde, con vista sulle colline e sui vigneti del Mendrisiotto. Stabile con ampia autorimessa, grande lavanderia comune, spaziose cantine. Suddivisione interna: atrio entrata con armadio guardaroba, soggiorno con uscita sul balcone, cucina abitabile, wc-ospiti, zona notte con due camere da letto e bagno e camera supplementare. Superficie ca. 126 m2. Affitto mensile Fr. 1'250.-- + Fr. 250.-- acconto spese Possibilità posteggi autorimessa a Fr. 100.-- l'uno.
Apartment
3.5 Rooms
3.5 Rooms
CHF 1,000.-/month + ch.
Via Cereghetti 8, 6834 Morbio Inferiore
1st floor
Immediate
Bel 3.5 locali in comodissima posizione tranquilla
Affittasi in condominio, spazioso 3.5 locali, in bella posizione tranquilla nel centro di Morbio Inferiore. Bella zona nel verde, con vista sulle colline e sui vigneti del Mendrisiotto. Stabile con ampia autorimessa, grande lavanderia comune, spaziose cantine. Suddivisione interna: atrio entrata con armadio guardaroba, soggiorno con uscita sul balcone, cucina abitabile, wc-ospiti, zona notte con due camere da letto e bagno. Superficie ca. 93 m2. Affitto mensile Fr. 1'000.-- + Fr. 150.-- acconto spese Possibilità posteggi autorimessa a Fr. 100.-- l'uno.
Apartment
3.5 Rooms
3.5 Rooms
91 m²
91 m²
CHF 1,250.-/month + ch.
Via al Funti 15, 6834 Morbio Inferiore
5th floor
Immediate
Affascinante 3.5 locali rinnovato con balcone a Morbio
Proponiamo in locazione un appartamento di 3.5 locali di 91 mq, situato all'ultimo piano di uno stabile in zona tranquilla e ben servita. L'edificio é attualmente in fase di rinnovo e verrà presto dotato di un impianto fotovoltaico, offrendo così un ambiente abitativo più moderno, efficiente ed ecosostenibile. L'appartamento si compone di: - piccolo atrio con armadio a muro - ampio soggiorno con accesso al balcone - cucina abitabile - due camere da letto - bagno con vasca - servizio con WC e lavabo Grazie agli spazi ben distribuiti, l'appartamento offre un ambiente accogliente e funzionale, ideale per famiglie o coppie che desiderano vivere in una zona comoda e tranquilla. La posizione permette di raggiungere comodamente scuole, il Centro Shopping Serfontana e i principali collegamenti stradali. Su richiesta sono disponibili posti auto esterni a CHF 60.00 al mese ed interni a CHF 100.00 al mese. NB: Le fotografie sono di carattere indicativo e possono differire dall'oggetto...
Apartment
4.5 Rooms
4.5 Rooms
101 m²
101 m²
CHF 1,460.-/month + ch.
Via al Funti 17, 6834 Morbio Inferiore
1st floor
Immediate
Affittasi grazioso e rinnovato appartamento a Morbio
Proponiamo in locazione un appartamento di 4.5 locali di 101 mq, recentemente rinnovato, situato in zona tranquilla e ben servita. Lo stabile é attualmente in fase di rinnovo e, a breve, verrà dotato di un impianto fotovoltaico, per un'abitazione più sostenibile ed efficiente. L'appartamento si compone di: - piccolo atrio con armadio a muro - ampio soggiorno con accesso al balcone - cucina abitabile - tre camere da letto - bagno con vasca - servizio con WC e lavabo Grazie agli spazi ben distribuiti e alle finiture moderne, l'appartamento offre un ambiente accogliente e funzionale, ideale per famiglie. La posizione permette di raggiungere comodamente scuole, negozi e i principali collegamenti stradali. Su richiesta sono disponibili posti auto esterni a CHF 60.00 al mese ed interni a CHF 100.00 al mese. NB: Le fotografie sono di carattere indicativo e possono differire dall'oggetto originale. Per ulteriori informazioni o per fissare una visita, non esitate a contattarci! Veronica...
Apartment
2.5 Rooms
2.5 Rooms
50 m²
50 m²
CHF 1,100.-/month
6834 Morbio Inferiore
To agree
CHARME ET DÉTENTE DANS UNE ANCIENNE FERME
À Morbio Inferiore, dans un endroit privé et calme, Ebuyhouse propose à la location un splendide appartement de 2,5 pièces dans une ferme historique, entièrement rénovée. Si vous rêvez d’un appartement qui allie le charme des maisons d’antan au confort moderne, c’est l’occasion rêvée ! Situé à l’intérieur d’une ferme historique, cet appartement de 2,5 pièces entièrement rénové a su conserver l’âme et l’atmosphère accueillante des résidences d’antan, tout en offrant des finitions de grande qualité. Caractéristiques principales : Espace de vie Cuisine dans une pièce séparée super-équipée ? Plaque à induction, four mixte avec micro-ondes, lave-vaisselle et grand réfrigérateur. Chambre avec cheminée ? Un détail exclusif qui rend l’environnement encore plus fascinant. Salle de bain moderne avec douche Buanderie privée Un coin d’histoire et de paix : la restauration a préservé le caractère authentique de la ferme, donnant un...
Apartment
3.5 Rooms
3.5 Rooms
81 m²
81 m²
CHF 1,240.-/month
Via Maestri Comacini 17, 6834 Morbio Inferiore
2nd floor
To agree
LUMINOSO 3.5 LOCALI A MORBIO INFERIORE
In affitto un accogliente appartamento di 3.5 locali situato nel tranquillo quartiere Ghitello di Morbio Inferiore. Questa soluzione abitativa si trova al primo piano di una palazzina con soli 6 appartamenti, garantendo così un ambiente sereno e riservato. L'appartamento è composto da un ampio soggiorno con porta finestra che da accesso ad un generoso balcone, cucina completamente ristrutturata, due camere da letto spaziose e ben illuminate. Completano l'oggetto un bagno con vasca e bagno di servizio. Spese accessorie CHF 230.00 / mese A disposizione box auto o posteggio esterno. Se stai cercando un luogo dove sentirti a casa, in una zona tranquilla e ben servita, questo appartamento potrebbe essere la scelta giusta per te. Contattaci per maggiori informazioni o per fissare una visita e scoprire tutti i dettagli!
Refine your search
Apartments with 1 room for rent in Morbio Inferiore
Apartments with 1.5 rooms for rent in Morbio Inferiore








































































