
Villa
7 Zimmer
7 Zimmer
CHF 3'950'000.-
6645 Brione sopra Minusio
Nach Absprache
Majestätische Villa mit grossem Grundstück und 180°-Blick auf den See
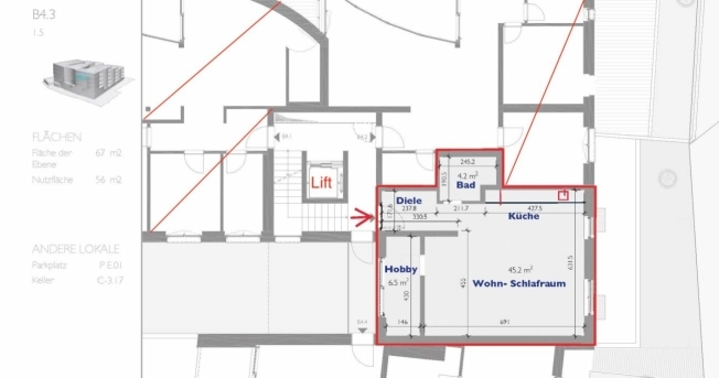
Majestätische Villa mit grossem Grundstück und 180°-Blick auf den See Villa Ronco al Sole – ein Ort für Lebensgeniesser Auf der sonnigen Hanglage von Minusio, an einem ruhigen und wunderbaren Ort, befindet sich diese charmante Villa, die in den dreissiger Jahren von einem bekannten Unternehmerpaar erbaut wurde. Seit dem Verkauf an die heutige Eigentümerfamilie in den sechziger Jahren wurde das Anwesen kontinuierlich sehr gut gepflegt und renoviert und behutsam unter Erhaltung des zeitlosen klassischen Stils unterhalten. Das dreistöckige Grundriss-Layout mit seinen grosszügigen Räumen und eleganten Deckenhöhen bietet ideale Möglichkeiten, Ihre eigenen Wohnwünsche zu verwirklichen. Das parkähnliche Grundstück mit rund 8.750 m² alten Bäumen und schönen Zier- und Nutzpflanzen ist terrassenförmig angelegt und liegt hauptsächlich in der landwirtschaftlich genutzten Grünzone. Von der Via Albaredo aus gelangt man zur Villa Zugang zur freistehenden Villa Erdgeschoss –...










