ZU VERKAUFEN IN CUGNASCO - NEUES 5,5-ZIMMER-EINFAMILIENHAUS MIT PRIVATEM GARTEN
Localisation
Via Locarno 25, 6516 CugnascoCaractéristiques
Descriptif
ZU VERKAUFEN IN CUGNASCO - NEUES 5,5-ZIMMER-EINFAMILIENHAUS MIT PRIVATEM GARTEN
Zu verkaufen in Cugnasco, in einer sehr strategischen und sonnigen Lage, ein neu gebautes Einfamilienhaus.
Die grossen Räume und die gut durchdachte Aufteilung machen dieses Haus ideal für eine Familie, die einen eigenen Wohnsitz sucht.
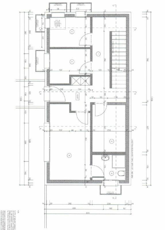
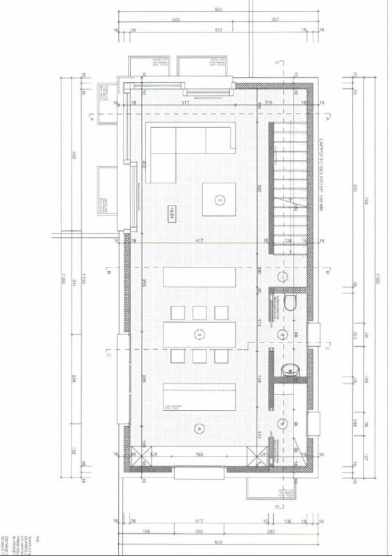
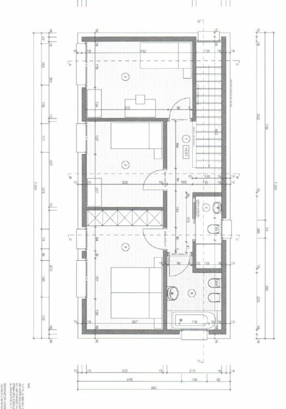
Das Haus verteilt sich über 3 Etagen und ist wie folgt aufgeteilt:
Erdgeschoss ( Bruttofläche 52,50 m²):
- Eingangsbereich/Garderobe;
- Erstes Zimmer mit eigenem Bad (auch als Kosmetikstudio/ Home Office geeignet);
- Kellerraum;
- Private Waschküche;
- Technischer Raum.
1. STOCK (Bruttofläche 72 m²):
- Geräumiges und helles Wohnzimmer mit Zugang zum privaten Garten;
- Moderne Küche komplett mit Zubehör offen zum Wohnzimmer;
- Kleiner Vorratsraum;
- Gästetoilette (WC - Waschbecken).
2. STOCK (Bruttofläche 72 m²):
- Erstes Schlafzimmer;
- Zweites Schlafzimmer;
- Hauptschlafzimmer;
- Badezimmer mit Dusche;
- Badezimmer mit Badewanne.
SONSTIGES:
- Zwei Privatparkplätze pro Einheit;
- Heizung: unabhängige Wärmepumpe mit Fussbodenheizung.
Commodités
Environnement
- Enfants bienvenus
Extérieur
- Balcon(s)
- Parking
Intérieur
- Animaux bienvenus
Equipement
- Lave-linge
Etat
- Neuf
Ensoleillement
- Optimal
Vue
- Montagnes
























