À VENDRE À CUGNASCO - NOUVELLES MAISONS UNIFAMILIALES DE 5,5 PIÈCES SITUÉES DANS UNE ZONE TRANQUILLE
Localisation
Via Chiosso 20, 6516 CugnascoCaractéristiques
Descriptif
À VENDRE À CUGNASCO - NOUVELLES MAISONS UNIFAMILIALES DE 5,5 PIÈCES DANS UNE ZONE TRANQUILLE
À Cugnasco, dans une zone résidentielle ensoleillée et tranquille, à vendre des maisons unifamiliales de 5,5 pièces encore en construction.
Ces maisons ont été construites en utilisant des finitions de qualité et des matériaux certifiés.
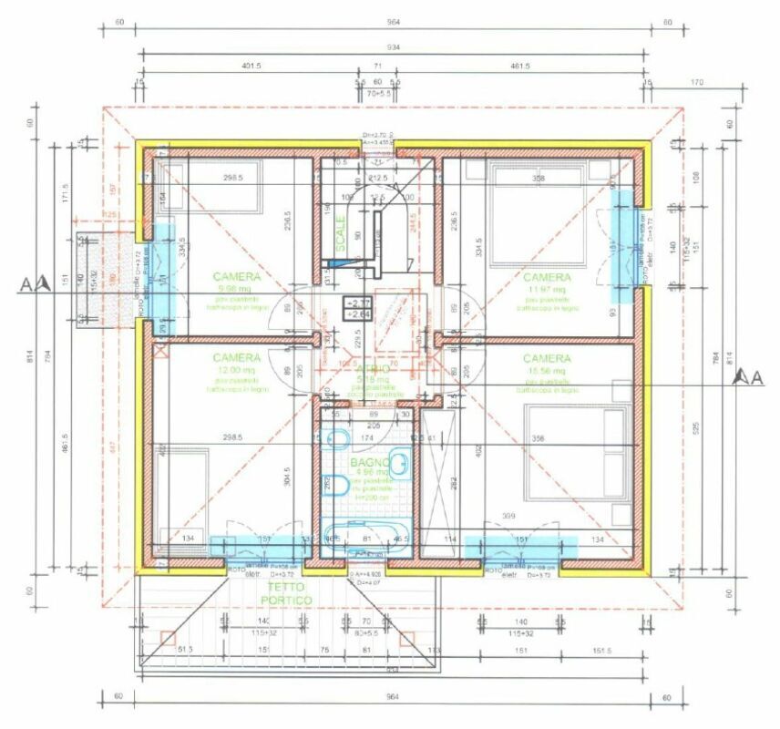
Le complexe résidentiel est composé de seulement 4 maisons neuves, dont la composition est la suivante:
- Entrée/hall;
- Salle de bains avec douche;
- Grand salon lumineux avec accès au jardin privé;
- Cuisine moderne semi-ouverte sur le salon et avec accès au jardin privé.
- 1ER ÉTAGE:
- 1ère chambre à coucher;
- 2ème chambre à coucher;
- 3ème chambre à coucher;
- 4ème chambre à coucher;
- Salle de bains avec baignoire.
PLAN -1:
- Grande cave/atelier chauffée;
- Salle de lavage privée;
- Local technique.
AUTRES:
- 2 places de parking couvertes par unité;
- Chauffage: pompe à chaleur indépendante avec serpentins au sol.
BIENS À VENDRE:
- Maison de 5,5 pièces sur 214 m2: CHF 1 050 000;
- Maison de 5,5 pièces sur 246 m2: CHF 1 100 000;
- Maison de 5,5 pièces sur 256 m2: CHF 1 140 000;
- Maison de 5,5 pièces sur 301 m2: CHF 1 200 000.
Commodités
Environnement
- Enfants bienvenus
Extérieur
- Balcon(s)
- Silencieux/tranquille
- Parking
Intérieur
- Animaux bienvenus
Etat
- Neuf
Ensoleillement
- Optimal
Vue
- Montagnes






















