
Office
3.5 Rooms
3.5 Rooms
150 m²
150 m²
CHF 3,500.-/month
Via Serafino Balestra, 6900 Lugano
Immediate
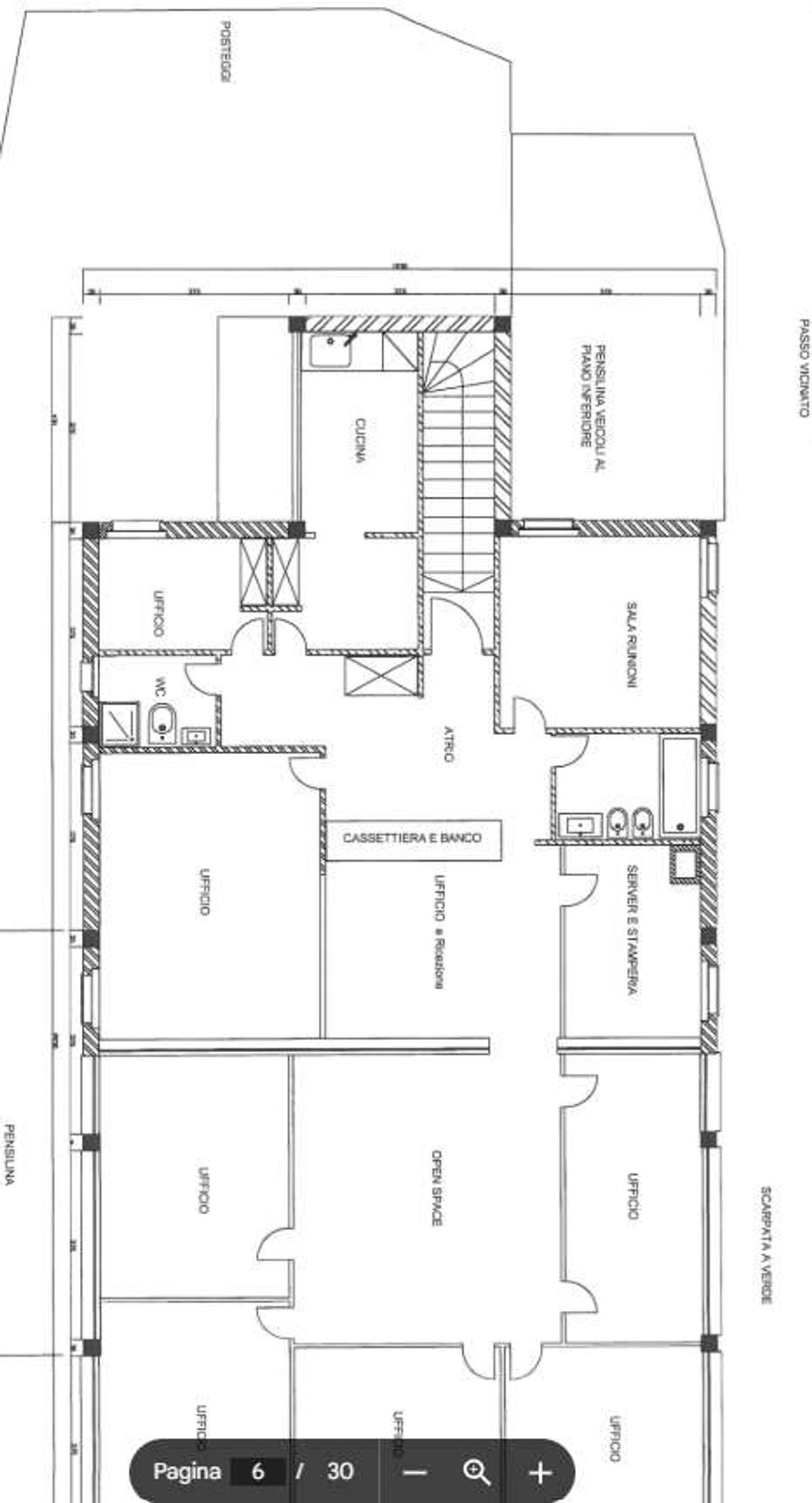
Prestige office in the center of Lugano
We offer an exclusive office space for rent located on the top floor of a prestigious building in the heart of Lugano, opposite the Balestra car park. This approximately 150 m² space is optimally structured and includes a large open-space area, two director’s offices and a storage room. Tenants also have access to a modern and fully equipped kitchen as well as separate sanitary facilities for men, women and people with disabilities. There are numerous covered parking spaces available, which are offered for CHF 250 each. For more information, please contact Marco on +41 78 746 1996. Wir bieten eine exklusive Büroimmobilie zur Miete an, die sich im Dachgeschoss eines prestigeträchtigen Gebäudes im Herzen von Lugano befindet, gegenüber dem Parkhaus Balestra. Dieser etwa 150 m² große Raum ist optimal strukturiert und umfasst einen großen Open-Space-Bereich, zwei Direktorenzimmer und ein Abstellzimmer. Die Mieter haben zudem Zugang zu einer modernen und voll ausgestatteten Küche...
























































