Office
Rue de Berne 3, 1201 Genève
Office
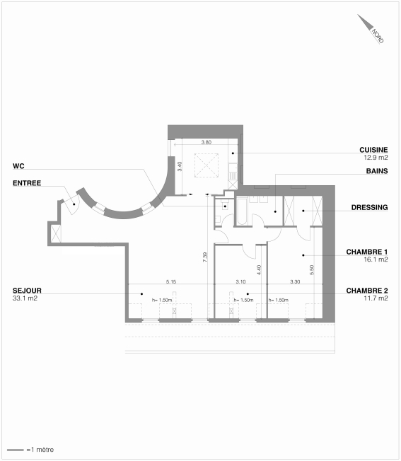
This beautiful building of Geneva architecture is located a stone's throw from the train station, in the very heart of the right bank. Public transport, shops, Post Office are all nearby We offer you on the 1st floor, an office space facing a square which will ensure you peace and quiet for your work in the very heart of the city. It consists of an entrance hall, two rooms do not have a kitchenette, a sanitary room with shower and a sunny grotto. Ce bel immeuble d’architecture genevoise est situé à deux pas de la gare, dans l’hypercentre de la rive droite. Transports publics, commerce, Poste sont à proximité immédiate Nous vous proposons au 1er étage, une surface du bureau orientée sur un square qui vous assurera du calme pour votre travail en plein centre ville. Elle se compose d’une salle d’entrée, deux pièces ne disposent pas de kitchenette, d’une salle sanitaire avec douche et d’une grotte au soleil.