Apartment
Bahnhofstr, 43, 4950 Huttwil
Modern apartment in a prime location near the train station
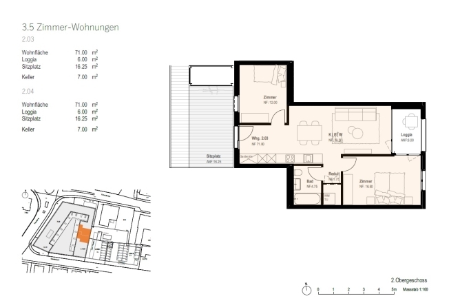
From 01.02.2025 we rent an attractive and modern 3-room apartment directly next to the train station or by appointment. The apartment convinces with the following advantages: - Well thought-out and versatile floor plan - Spacious, bright and open kitchen with ceramic hob and dishwasher - Modern and high-quality materials - Parquet floor throughout the apartment - Bath/WC with separate bath and shower/WC - Laundry tower in the apartment, drying room on the floor - Sitting area in the courtyard and sunny loggia - Large cellar compartment with electrical connection - Lift available - Parking spaces can be purchased for CHF 130.00/month each. can be rented for this purpose - Shopping directly in the house (Coop, pharmacy, etc.) We look forward to receiving your application À partir du 01.02.2025, nous louons un appartement de 3 pièces attrayant et moderne directement à côté de la gare ou sur rendez-vous. L’appartement convainc par les avantages suivants : - Plan d’étage bien...