Single family house
6.5 Rooms
6.5 Rooms
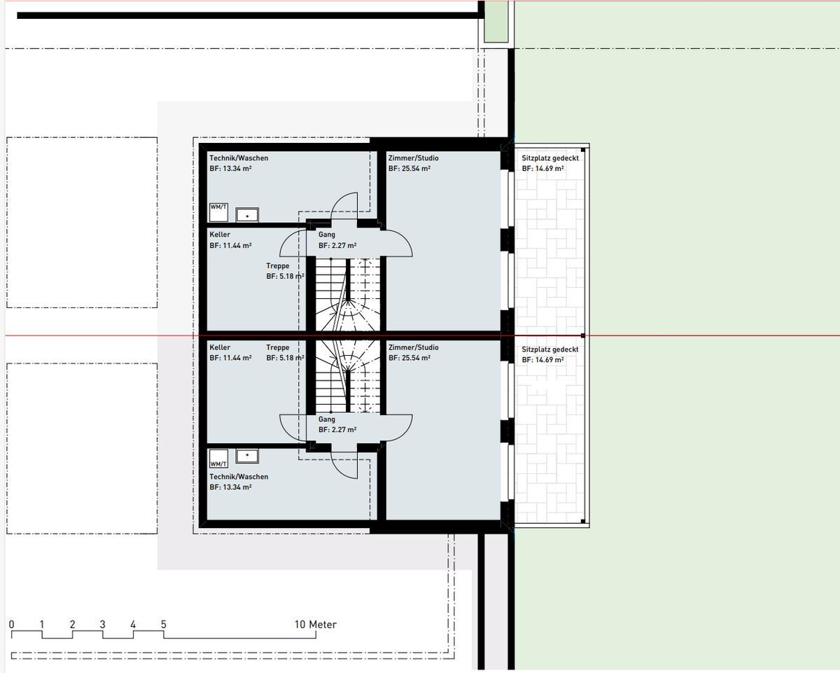
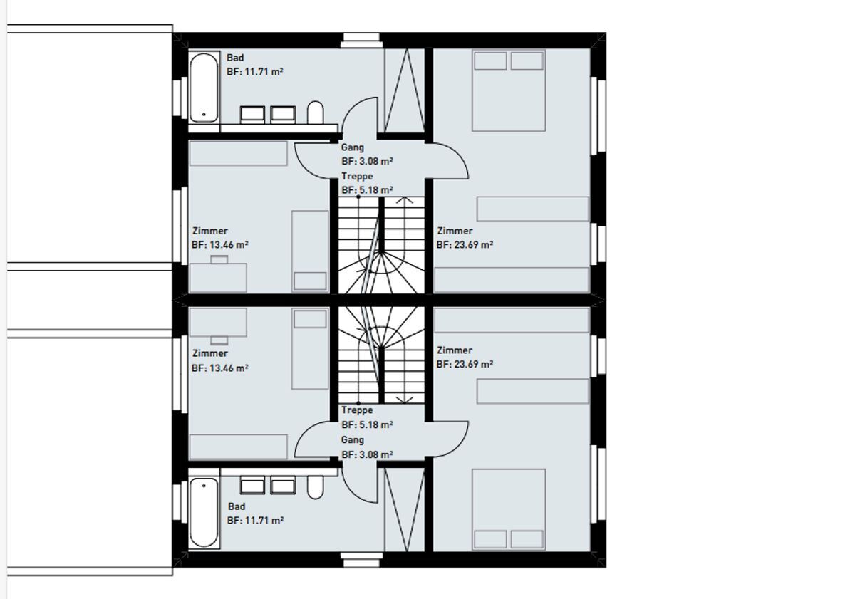
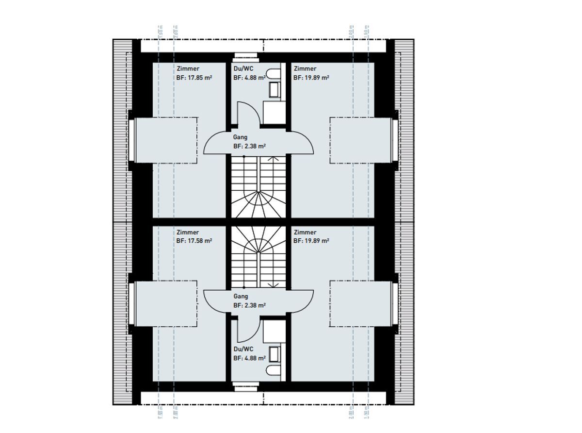
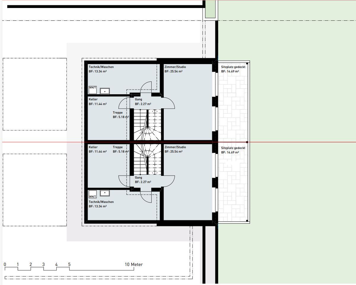
193 m²
193 m²
Price upon request
8572 Guntershausen b. Berg
To agree
FAMILIENTRAUM AM WALDRAND
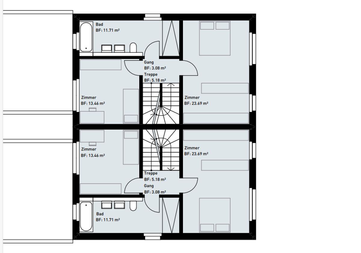
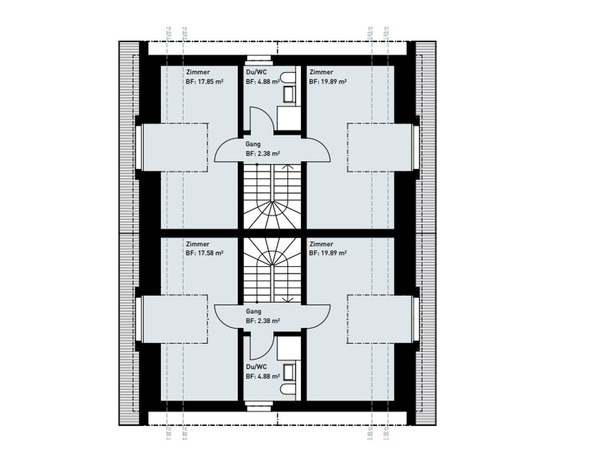
An ruhiger und idyllischer Waldrandlage in 8572 Berg entsteht Ihr neues Zuhause - eine moderner Doppelhaushälfte, die durch hochwertige Materialien, helle Räume und einen familienfreundlichen Grundriss überzeugt. With a generous living space of 193 m², this house offers enough space for the whole family. The open living and dining area with direct access to the garden creates a welcoming atmosphere and invites you to linger. On the upper floor, the master bedroom with its own bathroom is a highlight for those who value comfort and privacy. Thanks to the large window surfaces, you can enjoy plenty of daylight and a beautiful view of the countryside. Highlights Wonderful location directly on the edge of the forest193 m² living space / 6.5 roomsFamily-friendly floor planBright, modern rooms with large window frontsHigh-quality materials and modern architectureEnergy-efficient air-water heat pumpMaster bedroom with en-suite bathroomSunny terrace and private gardenCarport and several...



























































