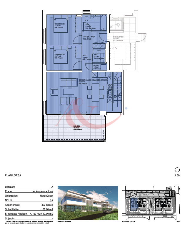
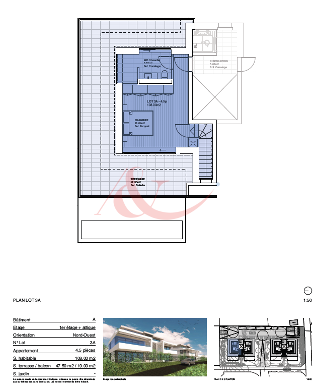
Apartment
3.5 Rooms
3.5 Rooms
80 m²
80 m²
CHF 2,870.-/month
Chemin de la Grangette 29, 1010 Lausanne
Immediate
3,5 pièces neuf à louer Lausanne
Nous avons le plaisir de vous présenter cette nouvelle promotion de deux immeubles de standing. Dans un secteur paisible et résidentiel de Lausanne, à quelques minutes seulement du centre-ville, le chemin de la Grangette séduit par son atmosphère calme et sa qualité de vie. Ce quartier bénéficie d'un cadre vert, de liaisons aisées avec les transports publics et d'un accès rapide aux commerces, écoles et axes autoroutiers, offrant ainsi un équilibre parfait entre tranquillité et proximité urbaine. C'est dans ce décor privilégié que ces deux nouveaux immeubles de standing de huit appartements neufs, de 3.5 et 4.5 pièces sauront vous séduire. Chaque logement a été conçu pour offrir confort et luminosité, avec de beaux volumes, de grandes baies vitrées et des finitions soignées. La livraison est prévue dès le 15 octobre 2025, permettant aux futurs locataires d'emménager rapidement dans un cadre moderne et parfaitement intégré à son environnement. Ces...