Apartment
4.5 Rooms
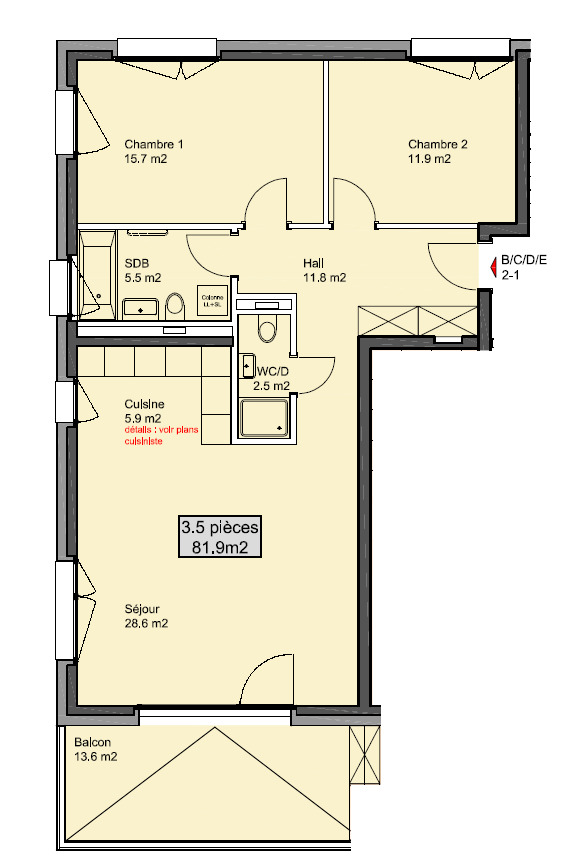
4.5 Rooms
104.8 m²
104.8 m²
CHF 1,640.-/month + ch.
En Charmet 17, 1695 Estavayer-le-Gibloux
1st floor
01.04.2026
4 ½ ROOMS – With balcony
Large 4 ½ room apartment on the 1st floor of a building with elevator offering: entrance hall leading to three bedrooms, one of which is 16 m² with en-suite bathroom, shower room with connection for your washing column, large living room with open kitchen, pleasant balcony in a quiet area. A cellar is available and two parking spaces are included in the price! Call us without delay! Vaste appartement de 4 ½ pièces au 1er étage d'un immeuble avec ascenseur vous offrant: entrée desservant trois chambres dont une de 16 m² avec salle de bains privative, salle de douche avec branchement pour accueillir votre colonne de lavage, vaste séjour avec cuisine ouverte équipée, agréable balcon au calme. Une cave est à disposition et deux places de parcs sont comprises dans le prix ! Appelez-nous sans tarder !




















































































