Single family house
6 Rooms
6 Rooms
CHF 695,000.-
Veia Da Salouf 19, 7452 Cunter
Immediate
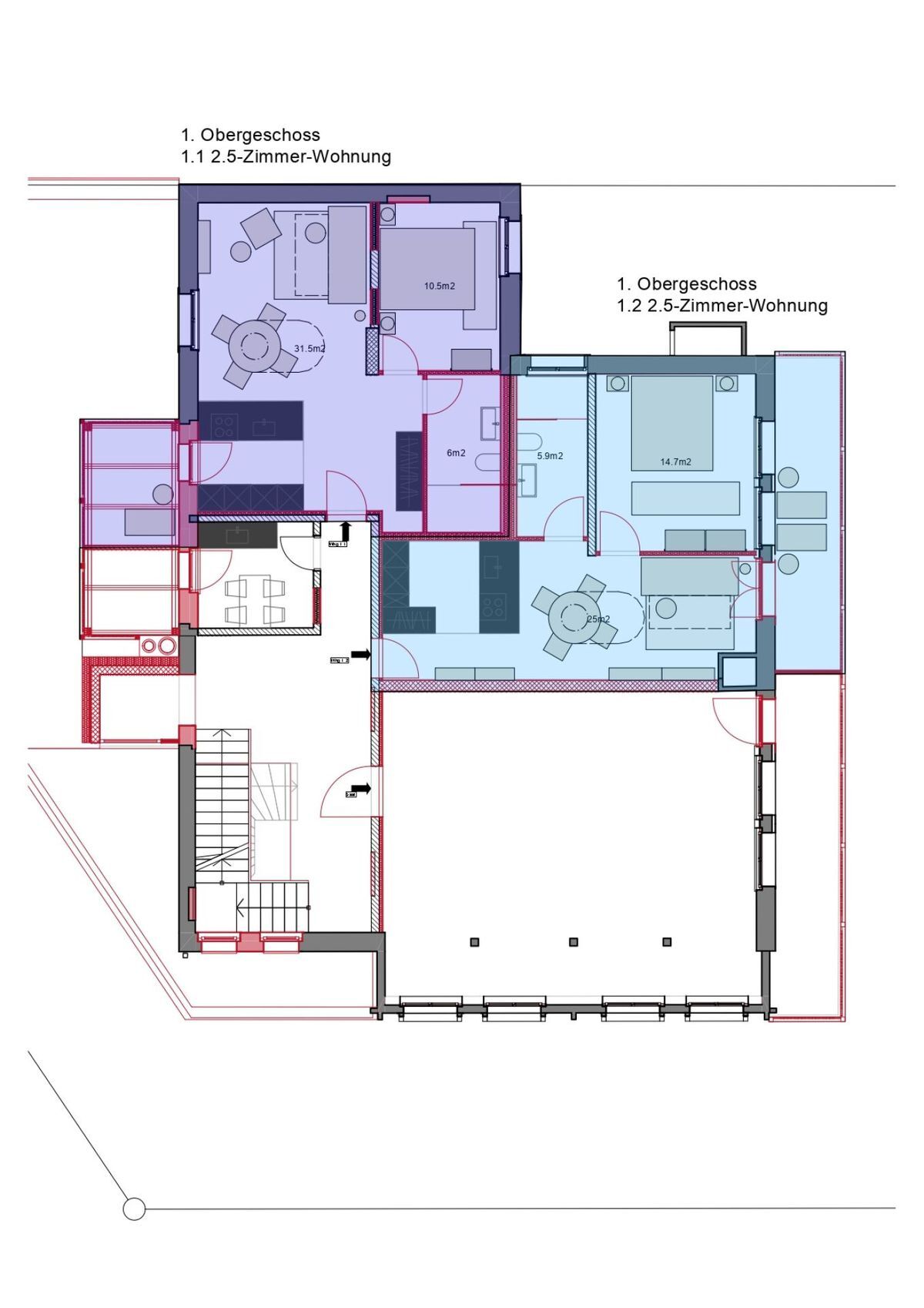
Ferienhaus mit 2 Wohnungen und traumhafter Bergsicht
This lovely holiday home is perfect for families looking for a self-sufficient holiday oasis in the beautiful holiday region of Savognin. As it stands, the property is divided into two residential units and offers various possibilities for use, and it can also be combined into a larger second home as a whole. The plot also has around 70m2 of additional land for future use, so there is no obstacle to expanding the current living space. The unique view with a clear view of the two imposing mountains Piz Toissa and Piz Curvér and the picturesque castle of Riom in the foreground is unparalleled. The view to the south towards Savognin is also impressive. The surroundings of this location are green and natural. As the outermost plot, you enjoy a lot of privacy on your property with good sunlight. The interior of the two apartments has been well maintained and is in good condition, but also leaves room for modernization and the implementation of new furnishing ideas. The two residential...






















































































































