Office
667 m²
667 m²
CHF 325.-/sqm/year + ch.
89-91 Lyon, 1203 Genève
2nd floor
To agree
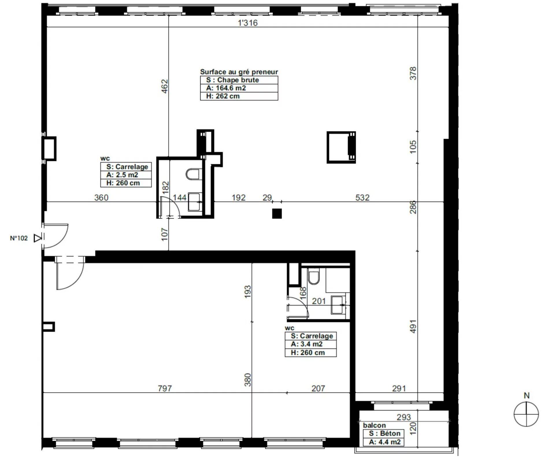
Office space
Located in the dynamic and rapidly changing Charmilles district, this 688 m² office space enjoys an ideal location between Cornavin station and the airport. It also benefits from its proximity to all amenities, including the Planète Charmilles shopping center. Configurable space. Rent CHF 18,065.- / month Charges CHF 1,390.- / month Visits Gaetan Bellec 022 319 89 22 commercial@comptoir-immo.ch Ancré dans le quartier dynamique et en pleine mutation des Charmilles, ce plateau de 688 m² bénéficie d'une position idéale entre la gare Cornavin et l'aéroport. Il profite également de sa proximité avec toutes commodités, notamment du centre commerciale Planète Charmilles. Surface aménageable. Loyer CHF 18'065.- / mois Charges CHF 1'390.- / mois Visites Gaetan Bellec 022 319 89 22 commercial@comptoir-immo.ch







































































































