Apartment
3.5 Rooms
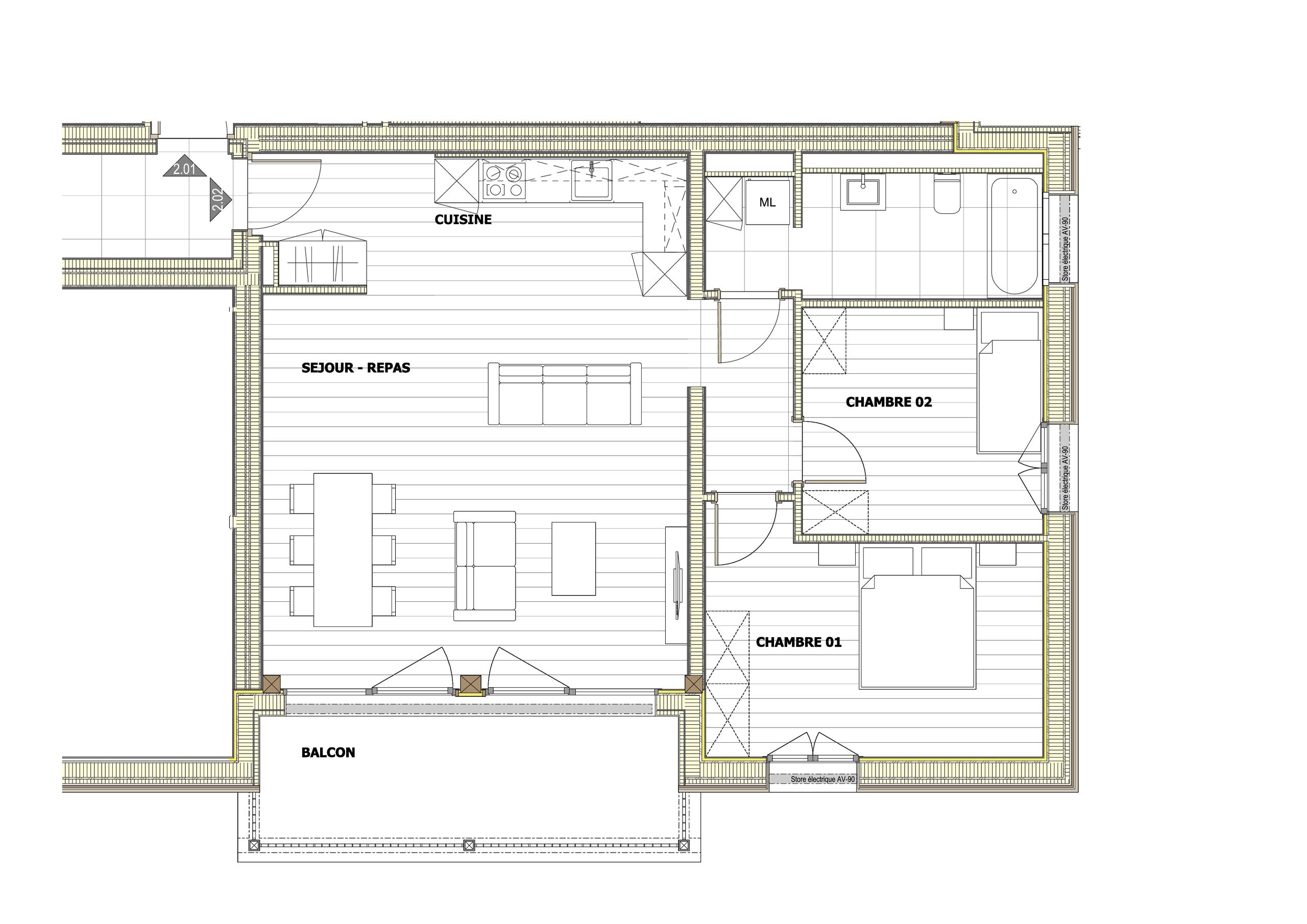
3.5 Rooms
95 m²
95 m²
CHF 2,000.-/month
Chemin du Verger, 1868 Collombey-Muraz
2nd floor
To agree
COLLOMBEY-MURAZ; BEAUTIFUL NEW CONTEMPORARY APARTMENT -
This 3.5-room apartment is located on the 2nd floor of a building under construction. Its typology is perfect and the construction and finishing materials are of very good quality. It consists of an entrance with a wall cabinet, a large living room with an open fully equipped kitchen, two bedrooms, a bathroom with a bathtub, WC, washbasin and a washing column. The building is a wooden frame construction, designed with the latest technologies and materials, including: Photovoltaic panels, heat pumps in geothermal energy, electric vehicle charging points, etc. The monthly price of the apartment will be CHF 1,840.- The monthly charges will be flat-rate and will cost CHF 160.- The price of the indoor parking space will be CHF 140.- The total monthly rent will be CHF 2,140.- This resolutely contemporary apartment is managed by a private client and will be located in a condominium. The quality of life, thanks in particular to the construction materials, will be healthy and recommended...
















