Doppelhaus
5.5 Zimmer
5.5 Zimmer
150 m²
150 m²
CHF 1'190'000.-
CHF 7'933.-/m²
Route de Saint-Cierges 5, 1410 Thierrens
Herbst 2027
Neue Überbauung in Thierrens – Familienvillen 5.5p mit Garten
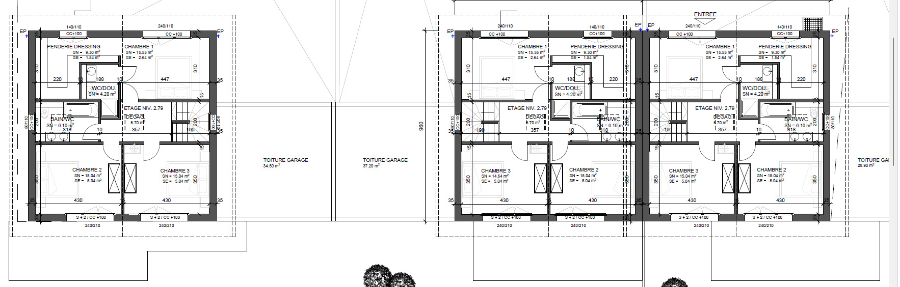
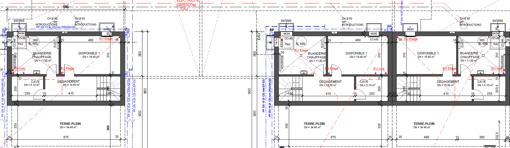
Neue Überbauung in Thierrens – 5,5-Zimmer-Familienvillen mit Garten – Villa B In einem ruhigen Wohngebiet gelegen, bieten diese 3 neuen 5.5-Zimmer-Villen grosszügige Räume, viel Licht und eine ideale Wohnumgebung für eine Familie. Sie profitieren von einer Südorientierung, einem privaten Garten und einem geräumigen Elternschlafzimmer von ca. 30 m². Die Vorteile des Eigentums: Neue 5.5-Zimmer-Villen Ruhige und wohnliche Lage Südorientierung Elternschlafzimmer mit ca. 30 m² und Ankleidezimmer Privater Balkon und Garten Garage (extra) + Aussenparkplatz Traditionelle, hochwertige Bauweise Individuelle Luft-Wasser-Wärmepumpe Geschäfte und öffentliche Verkehrsmittel zu Fuss erreichbar Verteilung: Erdgeschoss Eingangshalle mit Wandschränken Helles Wohnzimmer Offene Küche ausgestattet Schlafzimmer / Büro Besucher-WC Stock 2 Zimmer Badezimmer / WC Elternschlafzimmer von ca. 30 m² mit Ankleide und Duschraum / WC Dachböden Grosser, durch eine Luke zugänglicher Raum...


























































































