Wohnung
4.5 Zimmer
4.5 Zimmer
127 m²
127 m²
CHF 1'010'000.-
CHF 7'953.-/m²
6982 Agno
4. Stock
Sofort
AMPIO APPARTAMENTO AD AGNO
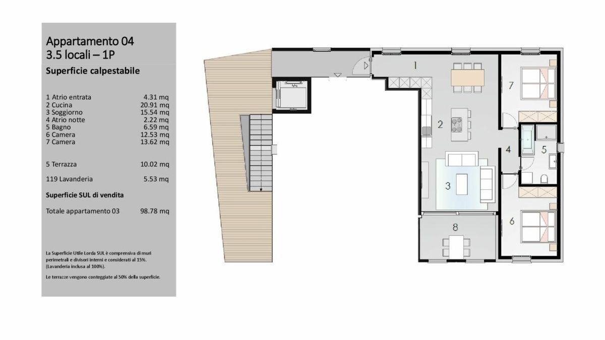
AMPIO APPARTAMENTO AD AGNO Ad Agno, in einer ruhigen und gut erschlossenen Wohngegend, bieten wir ein elegantes 4.5-Zimmer-Apartment zum Verkauf an, das perfekt für eine Familie ist, die in einer einladenden, funktionalen und gut vernetzten Umgebung leben möchte. Das Gebäude wurde 2011 erbaut und befindet sich in einer ruhigen Wohngegend. Die Residenz verfügt über einen schönen Gemeinschaftsgarten, der ideal zum Entspannen und für gemeinsame Momente ist. Alle wichtigen Dienstleistungen – Schulen, Geschäfte, Post, öffentliche Verkehrsmittel – befinden sich in unmittelbarer Nähe. Das Apartment befindet sich im vierten Stock eines fünfstöckigen Gebäudes mit 9 Wohneinheiten und ist in einem sehr guten Zustand. Die Wohnfläche beträgt ca. 130 m² und wird durch eine ca. 25 m² grosse Panoramaterrasse bereichert, die sich ideal für Mahlzeiten im Freien eignet. Die Innenräume sind gut aufgeteilt: Eingangsbereich mit Flur, grosser, heller Wohnraum mit Zugang zur Terrasse...















































































































































